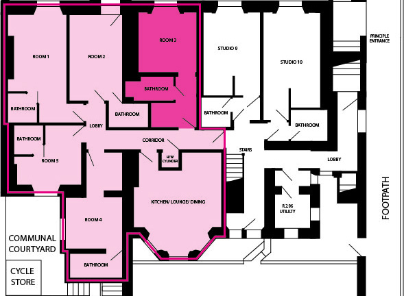
Floor plan for The SQUARE - Flat 8 - Room 3

img